連載
  杉という木材の建築構造への技術利用/第6回 「新しい水平構面をつくる・その2」
文/写真 田原 賢
 

「杉の可能性を引き出す」木造建築の構造を、実例をもとに紹介していきます

 
    *第5回 「新しい水平構面をつくる・その1」はこちら
       
  5.実験概要    
   
 
実験施設 近畿職業能力開発大学校 実習棟
実施期間 2001年7月18日・28日、8月29日
実施者 田原 賢 (田原建築設計事務所)
  村田幸子 (田原建築設計事務所)
  中尾裕樹 (田原建築設計事務所)
  嶋田 章 (田原建築設計事務所)
  恩田悦子 (田原建築設計事務所)
  田島幹夫 (近畿職業能力開発大学校 建築施工システム技術科 助教授)
  本セミナーの受講生
   
  当事務所に夏休みの間インターンシップ(校外実習)に来ていた下記の国立工業高等専門学校の各学生
 

黒木佳奈 (有明工業高等専門学校 建築科4年)

 

坂口 朱 (有明工業高等専門学校 建築科4年)

  谷口あすか (米子工業高等専門学校 建築科4年)
  山福若菜 (石川工業高等専門学校 建築科4年)
  伊藤悦子 (岐阜工業高等専門学校 建築科4年)
  阿部由希子 (宮城工業高等専門学校 建築科4年)
  佐藤悦子 (宮城工業高等専門学校 建築科4年)
  田中麻美 (宮城工業高等専門学校 建築科4年)
   
   
  6.試験体概要
   
  本試験体は下記のように5体の仕様による。
   
 
桧(吉野産)厚板 せん断抵抗ダボ仕様
米松(ドライビーム) 火打ち+合板転ばし根太仕様
杉(吉野産)厚板 せん断抵抗ダボ仕様
米松(ドライビーム) 合板直貼り(落とし込み根太)仕様
杉(高知県嶺北産)厚板 せん断抵抗ダボ仕様
   
 

上記のとおり5体をそれぞれ構造特性を持ち合わせており、その特性を説明すると下記の通りである。

   
  ●桧(吉野産)厚板 せん断抵抗ダボ仕様
  この仕様は、国産材(吉野産材)の桧板材による水平構面の構築であり、田原建築設計事務所が昨年度高度ポリテクセンター(千葉県幕張市)にて、行った「流しダボによる杉板水平構面の実験」の改良型であり、コスト的には杉よりもやや高いが、桧は材料強度も杉に対して高いため、コスト性能比も向上するものと考えられる。
   
  ●米松(ドライビーム) 火打ち+合板転ばし根太仕様
  この仕様は、一般的な木造2階建てにおける水平構面であり、特に多いと思われる。
このような転ばし根太と火打ちにおける性能は、「品確法」の表による床倍率で、約1.0倍程度の性能があるとされているが、大きな空間が必要となる床面や、偏芯率が0.3以上のバランスの悪い耐力壁の悪い住宅では、大地震時に危険となる場合がある。
   
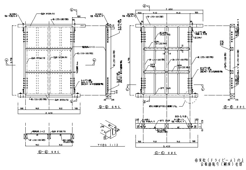
  ●米松(ドライビーム) 合板直貼り(落とし込み根太)仕様
  この落とし込み根太による合板直張り仕様は、「剛床」と呼ばれる水平構面であり、
木造3階建てにおいて規定されたといってよい仕様である。
現在のところ、この仕様の床倍率が一番剛性が高いとされ、「品確法」による床倍率は、約2倍以上とされている。
   
  ●杉(吉野産・高知県嶺北産)厚板 せん断抵抗ダボ仕様
 

この仕様も、桧の仕様と同じであり、杉ということで材料強度も低いが、コストも安いので普及するであろうと思われる仕様で、地域によるばらつきがあるものか否かを調べる実験でもある。

   
   
  以下に各試験体の図面を示す。
   
 
   
  試験体図   *図面をクリックすると、もう少し大きなサイズのものが見られます。
   
  1.桧厚板せん断抵抗ダボ仕様
 
   
  2.合板転ばし根太+火打ち仕様
 
   
  3.杉「吉野産」厚板せん断抵抗ダボ仕様
 
   
  4.合板直貼り(剛床)仕様
 
   
  5.杉「高知産」厚板せん断抵抗ダボ仕様
 
   
   
  次回は、試験前のチェック及び実験準備について解説をしたいと思う。
   
   
   
   
  ●<たはら・まさる> 「木構造建築研究所 田原」主宰 http://www4.kcn.ne.jp/~taharakn
   
 
Copyright(C) 2005 GEKKAN SUGI all rights reserved